For Sale: Water Chalet (Type D), Parcel 491, The Hibiscus, Port Dickson
Asking Price: RM 4,897,000
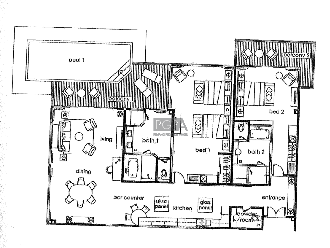
This exclusive water chalet, located in the renowned Hibiscus at Port Dickson, offers luxury and relaxation on the water’s edge. Spanning a built-up area of 2,610 square feet, this leasehold property (99 years) features two spacious en-suite bedrooms, each equipped with a shower room, bathtub, and steam room, ensuring a private sanctuary for every resident.
The chalet also boasts a private swimming pool, two sun decks, a comfortable living room, dining room, and a well-designed pantry, making it ideal for both personal use and investment. The property is fully furnished and expertly managed by Hotel Lexis Hibiscus, ensuring seamless maintenance and operations.
Completed in January 2016, this Water Chalet offers a unique investment opportunity. Since the completion date, the current owner has been receiving consistent rental income from the resort operator. Additionally, the owner is entitled to 10 days of Free-Stay Vouchers annually, adding further value to the ownership experience. Each chalet also benefits from its own sinking fund to cover repairs and ongoing maintenance.
Hibiscus at Port Dickson is one of Malaysia’s most iconic waterfront developments, known for its unique layout, where each chalet extends over the Straits of Malacca, resembling a hibiscus flower from above. The resort offers top-tier amenities, including world-class restaurants, spa services, a fitness center, and a range of recreational activities, making it a favored destination for both local and international tourists.
Investment Potential: Port Dickson’s proximity to major cities such as Kuala Lumpur (just over an hour’s drive) and Singapore makes it a highly accessible and desirable location for weekend getaways and holiday retreats. The connectivity to these metropolitan areas, combined with the appeal of Port Dickson’s natural beauty and modern amenities, ensures strong rental demand throughout the year, yielding a healthy return on investment. With its prime location, stunning design, and hotel-level management, this Water Chalet presents an attractive investment opportunity in Malaysia’s thriving tourism market.
©ï¸ Copyright Disclaimer: Pictures, descriptions, contents and materials in this advertisement are the sole property of PG PROPERTY ANGEL. In the event any party copies, reproduces or uses any of the contents in any manner whatsoever without the express consent of both PG PROPERTY ANGEL and its clientele, PG PROPERTY ANGEL reserves the right to institute legal proceedings against the said party for all legal remedies available to PG Property Angel.
©️ Copyright Disclaimer: All pictures, descriptions, content and materials in this advertisement are the sole property of PG PROPERTY ANGEL. Any unauthorised copying, reproduction or use of these materials without the express consent of PG PROPERTY ANGEL and its clientele is strictly prohibited, and PG PROPERTY ANGEL reserves the right to pursue all legal remedies available. For the most accurate information and latest pricing, kindly refer to our official listings on our website.
powered by